Spelen in De Stelt

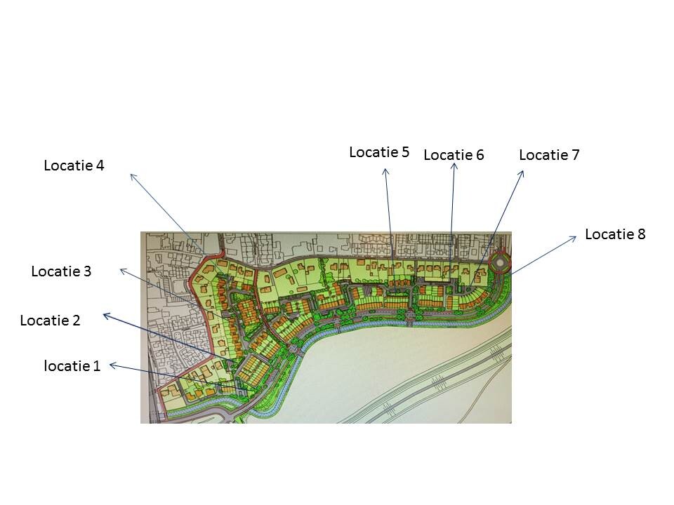
De bouw in De Stelt Noord is bijna klaar. Er wonen veel jonge gezinnen, de behoefte aan speelplekken is groot. Op 30 november jl. is een bijeenkomst georganiseerd om samen met bewoners te praten over de beste speellocaties en de wensen en ideeën voor de inrichting van die speellocaties. Deze input wordt op dit moment verwerkt. Naar verwachting zal er tegen eind januari/begin februari voor alle bewoners van De Stelt een vervolgbijeenkomst worden georganiseerd. Dan wordt het voorlopig ontwerp gepresenteerd en kan iedereen daarop inspreken.

Initiatiefnemer

Deelnemers

Er zijn nog geen deelnemers

Feedback van de gemeente

De schetsontwerpen zijn klaar. Er is nog discussie over de inrichting van plek 1, 3 en 4. Daarover gaat de werkgroep nog nader met aanwonenden in gesprek. In maart zal er voor alle bewoners van De Stelt een bewonersavond worden georganiseerd. Daar worden de schetsen gepresenteerd en wordt draagvlak voor de plannen gezocht. CW21022018

Reacties

Gepromoveerd naar In uitwerking op 04-11-2019

Het zou mooi zijn als er ook nog aandacht is voor de groenvoorzieningen in de Stelt. Meer (bloeiende) struiken, bomen, hagen, zodat er ook meer insecten en vogels zullen komen.

Antwoord

Dag Gemeente, wat is de stand van zaken per 1 juli 2018? We zijn erg benieuwd.

Antwoord
Idee is ingestuurd op 21-12-2017